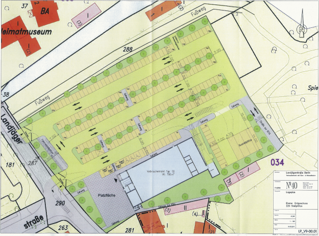
Nutzung des Bildes »Künftige Parkplatzwüste am Amtswäldchen« in Beiträgen
Das Bild »Künftige Parkplatzwüste am Amtswäldchen« ist in folgenden Objekten eingebunden.
Eingebunden in Bildergalerien
Das Bild wird in keiner Galerie verwendet bzw. es fehlen Berechtigungen.


